Главная страница / Каталог недвижимости / Новая квартира в жилом комплексе Бечичи
294.500 €
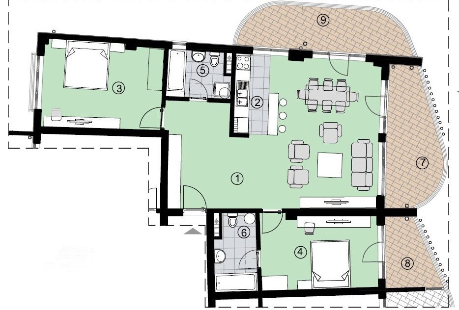
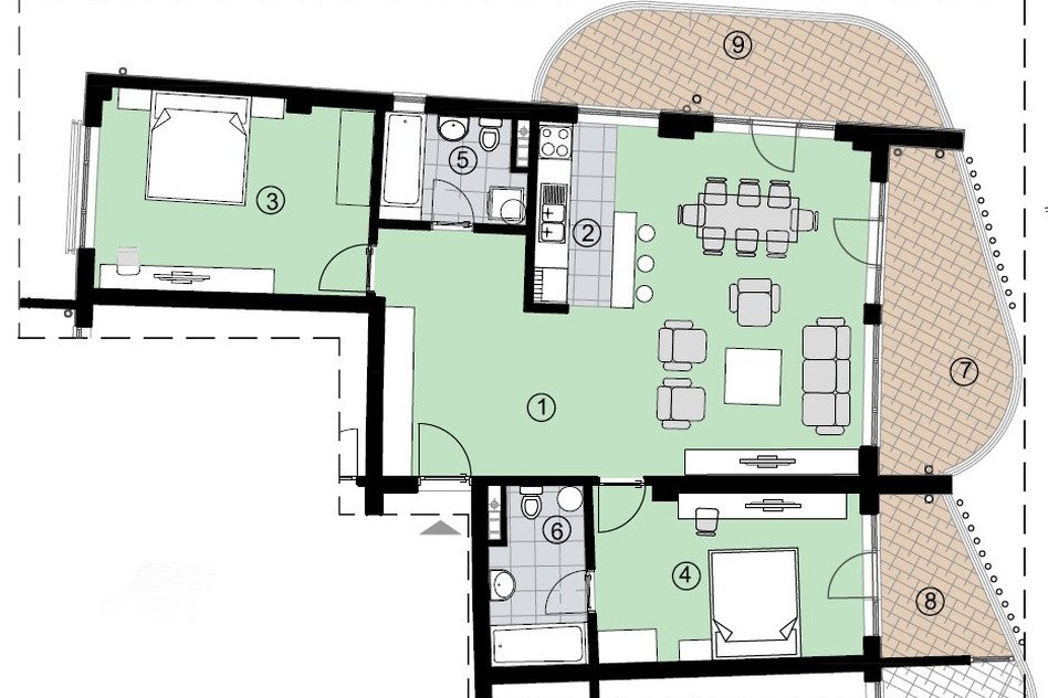
Продаётся квартира в Бечичи в жилом комплексе «Анатолия». Квартира расположена на третьем этаже и отличается просторной планировкой и красивым видом на море. Общая площадь по листу недвижимости составляет 120 м2, при этом 25 м2 террас предоставляются бесплатно. Оплата производится только за внутреннее пространство площадью 95 м2. Квартира включает две спальни, две ванные комнаты и три террасы, с которых открывается вид на море. Объект отлично подойдёт как для комфортного проживания, так и для инвестиционной аренды.
Покупка осуществляется без налога на оборот недвижимости, что делает предложение особенно выгодным.
Команда EURODOM MNE сэкономит ваше время и предложит подходящие объекты недвижимости под ваши задачи.
Наш русскоговорящий менеджер выедет на любой объект и позвонит вам в Telegram или WhatsApp. Покажет каждый уголок виллы или апартаментов; расскажет о локации и соседях, сдаче в аренду, проконсультирует по школам и университетам в Испания.
Если вы намерены купить объект, мы организуем перелет на просмотры. Наш русскоговорящий менеджер встретит вас в аэропорту и в течение 3-4 дней индивидуально поработает с вами.
Если вы намерены купить объект, мы организуем перелет на просмотры. Наш русскоговорящий менеджер встретит вас в аэропорту и в течение 3-4 дней индивидуально поработает с вами.